Каркас Скандик 11х12+ терраса

Каркас Скандик 11х12+ терраса

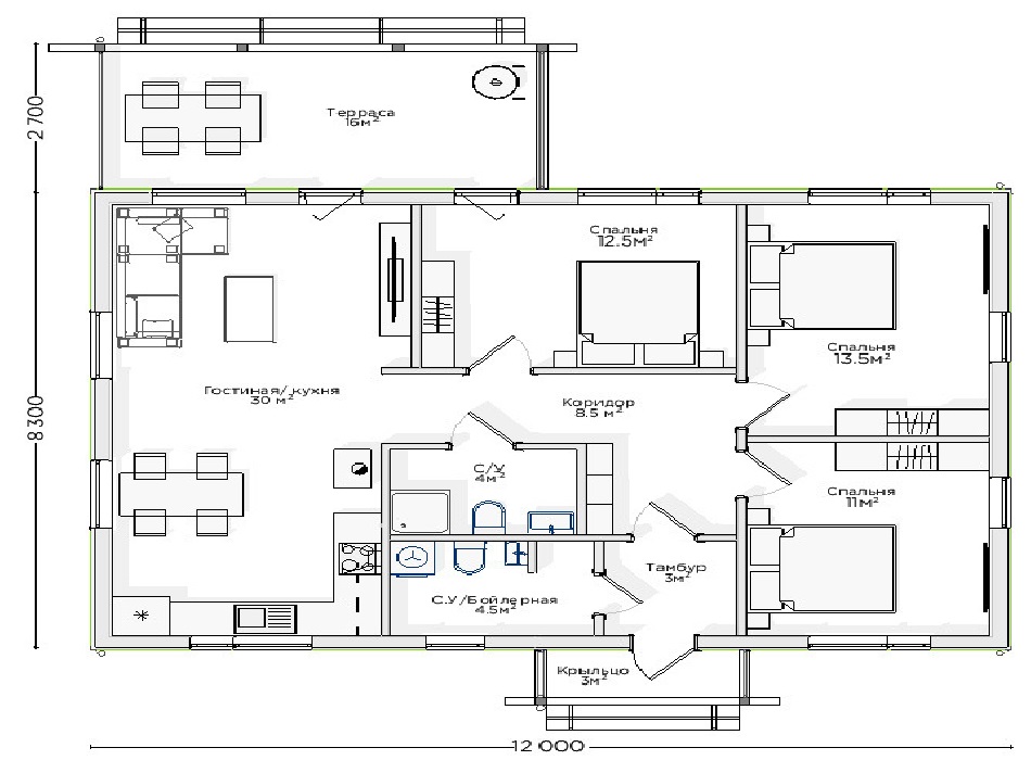
Площадь: 11х12
Количество этажей: 1
Количество спален: 3
Количество с/у: 2
Дополнительно: терраса
Фундамент по проекту: свайно-винтовой
Утепление кровли: 200
Утепление внешних стен: 150
Утепление пола: 200
Доработка проекта и изменение планировки бесплатно
910 000